服務咨詢電話
15969669188

手機購
更方便
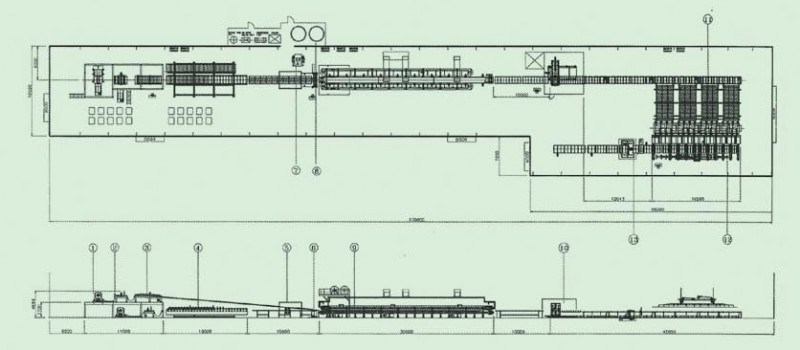
為降低建筑耗能,滿足行業內對環保型高性能聚氨酯硬泡的需求,現階段,成功推出康維特連續板材生產線。
在吸收德國和意大利技術的基礎上,進行自主創新,目前主推康維特連續板材生產線,已經達到先進水平,生產的聚氨酯硬泡導熱系數低,保溫隔熱效果好、黏結性能好、防水性能好、耐老化、化學穩定性,用于生產冷庫板、墻板、屋面板、軟面卷材復合板,為建筑行業輸送大規模綠色建材。
聚氨酯組分原料經過連續高壓發泡機的計量泵精密計量后,按照一定配比,被送入混合頭均勻地布料在復合板的底層面材上,并和上層面材同時被送入雙履帶層壓輸送機,聚氨酯泡沫在雙履帶層壓輸送機的上下輸送鏈板間發泡,并固定成型。待固定成型后,復合板在生產線上被自動跟蹤,切斷機按需切成一定長度的成品。